中文
|
English
HOME
About
Brief Introduction
Honor
Environment
Cooperation
Products
Speed Governer
Tension Device
Braking Device
OIL Buffer
Rope Brake
Guide Shoe
News
Company News
Industry News
Video News
Download
Contact Us
Contact
Marketing Network
Service
Products
Speed Governer
Tension Device
Braking Device
OIL Buffer
Rope Brake
Guide Shoe
Login
|
Register
Guide Shoe
HOME
>
Products
>
Guide Shoe
>
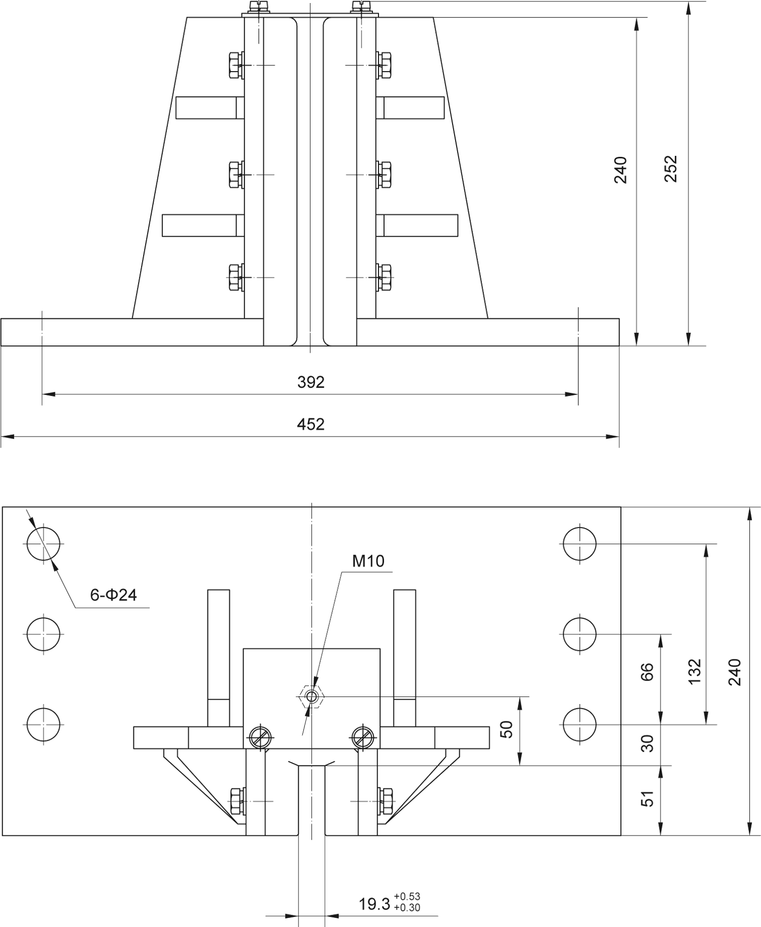
DX17 Sliding Guide Shoe
Technical Specifications
1.Rated Speed:V≤0.63m/s
2.Width of guide rail:19mm
For details, call "
86-316-2018793
"
Information