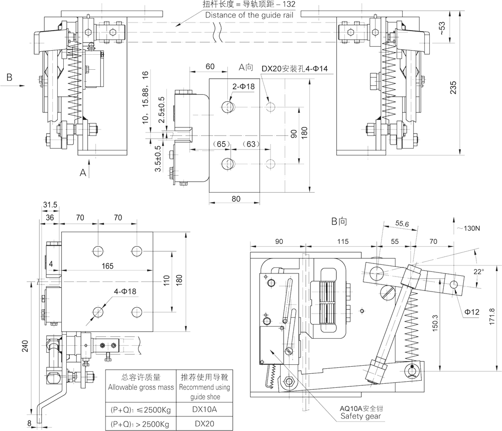
JXAQ10A Safety Brake Device For Car
1.Rated Speed:V:0.25~2.5m/s
2.Allowable gross mass:(P+Q)1:800~3600kg
3.Width of guide rail:10.15.88.16mm

Structure characteristic:
1.With control mechanism and guiding device
2.Control lever place:Two type of left or right
Notes:Please mention the distance of the guide rail and left & right layout on your PO
For details, call "86-316-2018793"
Information
JXAQ10A轿厢安全制动装置

JXAQ10A轿厢安全制动装置